Daten im Überblick
HIGHLIGHTS DER IMMOBILIE
Vielfältige Nutzungsmöglichkeiten
Zentrale Citylage mit hervorragender Infrastruktur
ALLGEMEINES
FLÄCHEN
ENERGIE
MIETPREISE
SONSTIGES
Objektbeschreibung
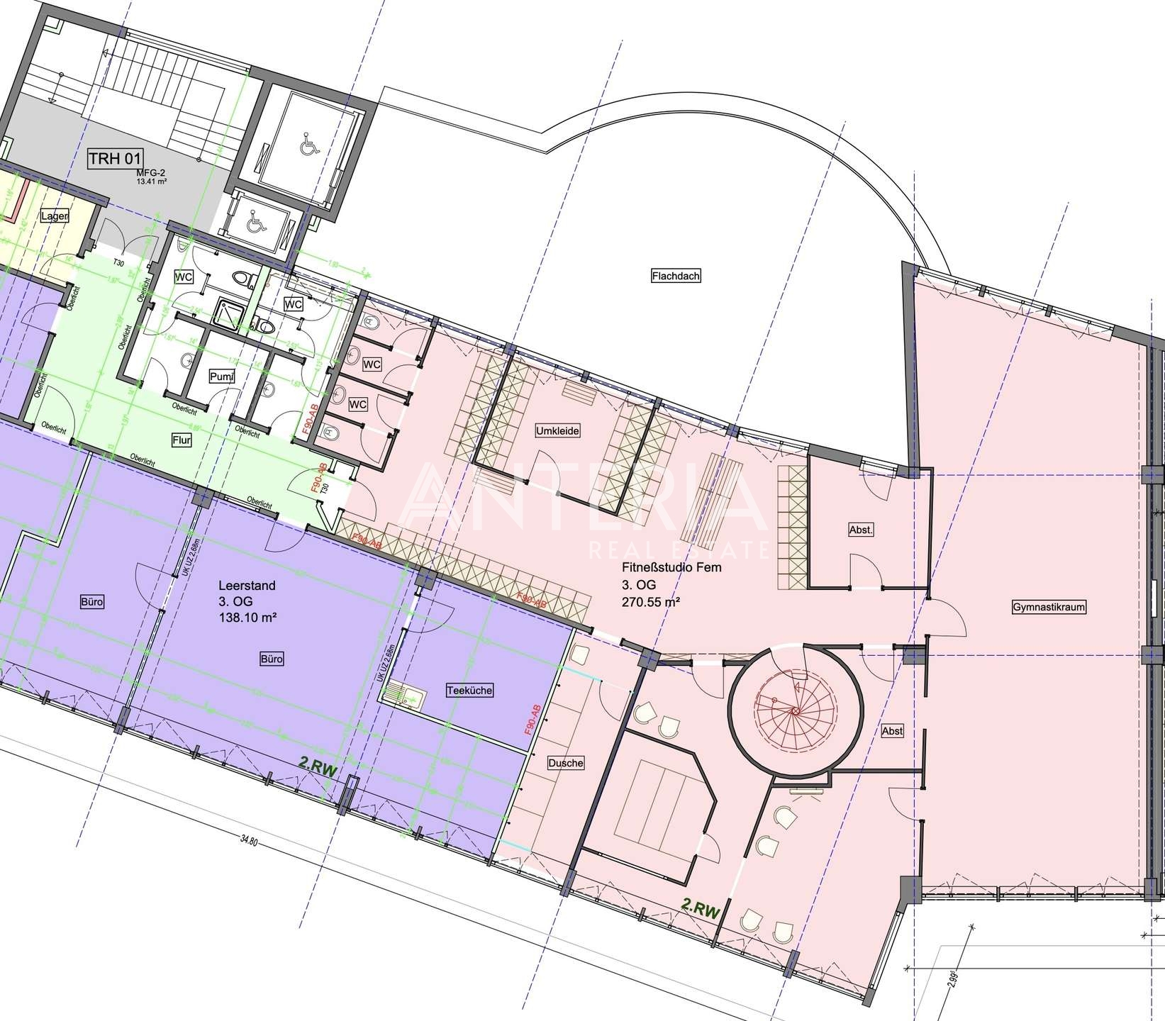
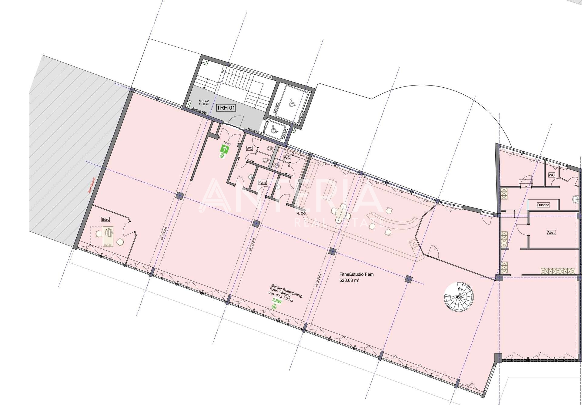
Die ca. 800 m² große Mieteinheit liegt im 3. sowie 4.OG eines Büro- und Geschäftsgebäudes. Derzeit wird die Fläche von einem Fitnessstudio genutzt, andere Nutzungen sind ebenfalls denkbar. Je nach den mieterspezifischen Anforderungen können Anpassungen in der Raumaufteilung und Ausstattung besprochen werden. Die Einheiten sind derzeit über eine interne Treppe verbunden. Eine Trennung der Einheiten ist möglich. Das 3.OG verfügt über eine Außenterrasse zum Innenhof. Aufgrund der derzeitigen Nutzung bietet die Fläche großzügige offene Trainingsflächen, zwei Duschbereiche sowie Umkleidekabinen. Im Gebäude befindet sich ein Personenaufzug.
Lagebeschreibung
Das Geschäftsgebäude liegt in zentraler Innenstadtlage unmittelbar am Jahnplatz und im direkten Umfeld der Fußgängerzonen und der Altstadt. Hier finden sich zahlreiche Nahversorgungsmöglichkeiten und ein vielfältiges gastronomisches Angebot.
Vom Jahnplatz besteht Anschluss an alle Stadtbahnen. Eine Bushaltestelle befindet sich zudem direkt vor dem Gebäude. Die Autobahnen A2 und A33 sind in ca. 10 Fahrminuten erreichbar.
Die dargestellte Position der Immobilie ist nur eine ungefähre Angabe.
Ausstattung
Helle, großzügige Flächen mit großen Fensterflächen
Anpassungen in Ausstattung und Raumaufteilung nach Absprache
Außenterrasse im 3.OG
Aufzug, barrierefreier Zugang
Mietflächen & Verfügbarkeiten
Mietfläche (3.OG): ca. 270,55 m²
Mietfläche (4.OG): ca. 528,63 m²
Gesamrtfläche: ca. 799,28 m²
Bezug: kurzfristig möglich bzw. nach Vereinbarung
Mietpreise
Kaltmiete (€/m²): ab 8,00 €/m² (IST-Zustand, ohne Nutzungsänderung)
Kaltmiete Büro (€/m²): ab 10,00 €/m²
Nebenkostenvorauszahlung (€/m²): ca. 4,50 €/m²
Verwaltungskosten: 3,0 % der Nettokaltmiete als Pauschale
Die Konditionen gelten jeweils monatlich zzgl. der gesetzlich gültigen Umsatzsteuer von derzeit 19 %.




