Daten im Überblick
HIGHLIGHTS DER IMMOBILIE
Erstbezug nach Kernsanierung
Raumaufteilung nach Mieterwunsch
Zentrale, werbewirksame Innenstadtlage
ALLGEMEINES
FLÄCHEN
ENERGIE
MIETPREISE
SONSTIGES
Objektbeschreibung
Die ÖVA-Passage wurde von 1955-1957 errichtet und bietet Büro- und Geschäftsflächen. Die Passage befindet sich in bester Innenstadtlage. Zur einen Seite liegt der Gebäudekomplex an den Planken, zur anderen Seite liegt er an der Fressgasse in direkter Nachbarschaft zum Stadtquartier Q6/Q7. Aktuell werden alle Büroflächen (1.OG - 4.OG) nach Komplettsanierung neu und modern ausgestattet. Die Raumaufteilung erfolgt nach Mieterwunsch. Die Plankenseite verfügt über 2.670 m2 Bürofläche. Die Fressgasse bietet insgesamt 1.740 m2 Bürofläche. Hier stehen aktuell noch mehrere Büroeinheiten zur Anmietung zur Verfügung.
In der hauseigenen Tiefgarage können nach Vereinbarung Stellplätze angemietet werden.
Lagebeschreibung
Das Büro- und Geschäftshaus befindet sich in zentraler Innenstadtlage. Hier findet sich eine ausgezeichnete Infrastruktur: sehr gute Einkaufsmöglichkeiten, ein umfangreiches Gastronomieangebot sowie zahlreiche Hotel- und Service- Dienstleister.
Eine Strassenbahnhaltestelle befindet sich unmittelbar vor dem Gebäude und sichert die Anbindung an den Hauptbahnhof im 5-Minutentakt.
Der Mannheimer Hauptbahnhof, der sämtliche Anbindungen des Nah- und Fernverkehrs bietet, ist zudem nur ca. 10 Gehminuten entfernt. Die Anschlussstellen an das Autobahnnetz (A 656, A 5 oder A 6) sind über die Augustaanlage ebenfalls in wenigen Minuten mit dem Auto zu erreichen.
Die dargestellte Position der Immobilie ist nur eine ungefähre Angabe.
Ausstattung
Helle Räumlichkeiten
Raumaufteilung nach Mieterwunsch
Kühlung / Klimatisierung (optional, gegen Aufpreis)
Außenliegender elektrischer Sonnenschutz
Neuer Bodenbelag
Neue, moderne Sanitäranlagen
BAP-gerechte Beleuchtung
Barrierefreier Zugang
Baujahr 1956 (Denkmalschutzobjekt)
Mietflächen & Verfügbarkeiten
Bürofläche 1.OG: ca. 351 m²
Teilbar in Einheit 104: ca. 115 m² und Einheit 105: ca. 236 m²
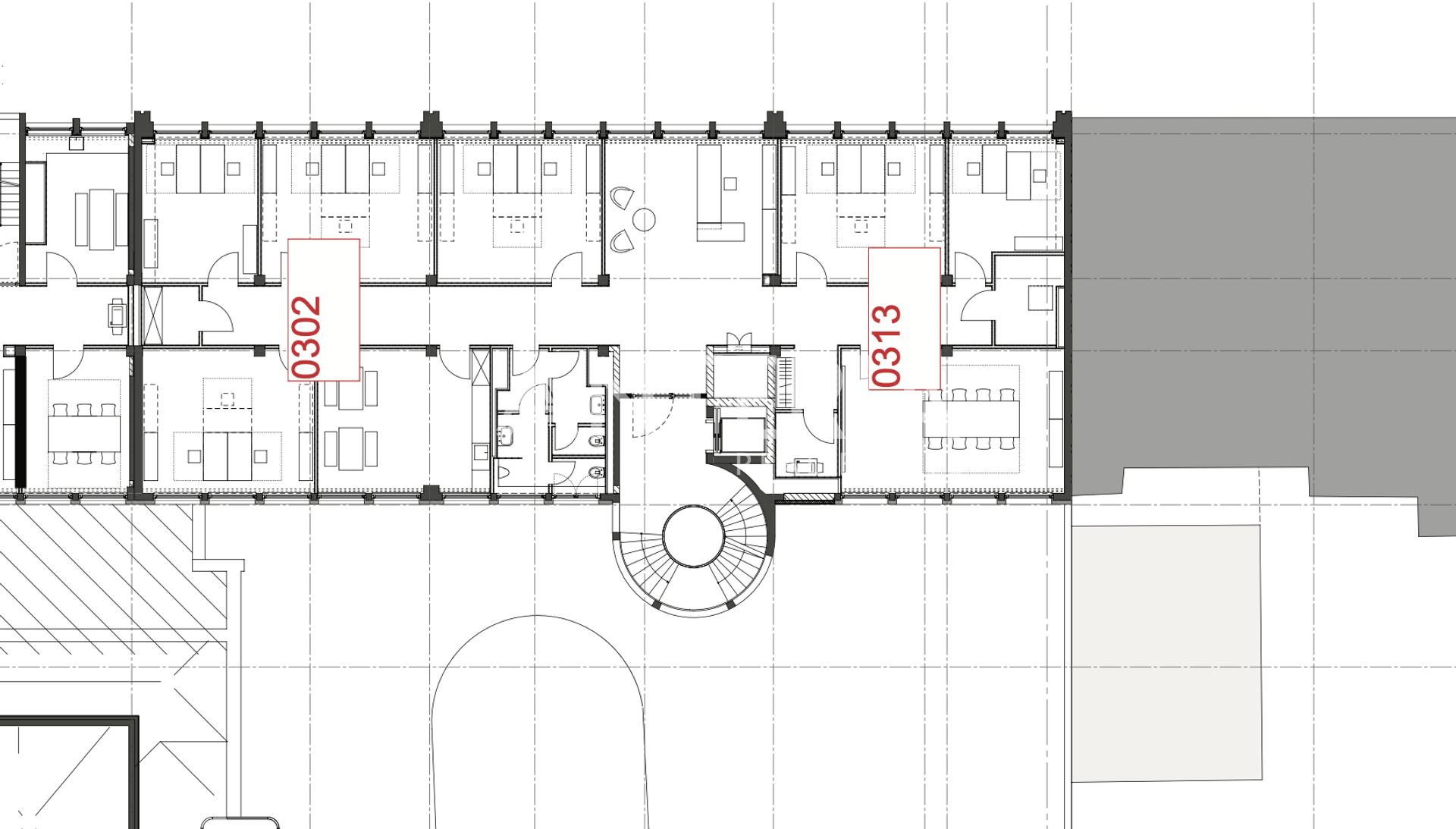
Bürofläche 3.OG: ca. 321 m²
Teilbar in Einheit 302: ca. 206 m² und Einheit 313: ca. 115 m²
Bürofläche 4.OG: ca. 448,21 m²
Teilbar in Einheit 401: ca. 242,21 m² und Einheit 402: ca. 206 m²
Bürofläche gesamt: ca. 1.120,21 m²
Bezug: nach Vereinbarung
In der hauseigenen Tiefgarage können Stellplätze angemietet werden.
Mietpreise
Kaltmiete Büroflächen (€/m²): ab 14,00 €/m² (Standardausbau)
Nebenkostenvorauszahlung (€/m²): 4,50 €/m²
PKW-Stellplatz (TG, ebenerdig) (€/Stk.): 160,00 €/Stk.
PKW-Stellplatz (TG, Doppelparker) (€/Stk.): 130,00 €/Stk.
Die Konditionen gelten jeweils monatlich, zzgl. der gesetzlich gültigen Umsatzsteuer von derzeit 19 %.











