Objekt des Tages
Daten im Überblick
HIGHLIGHTS DER IMMOBILIE
Repräsentative Adresse
Moderne Büroausstattung
Nachhaltige, energieeffiziente Gebäudetechnik
ALLGEMEINES
FLÄCHEN
ENERGIE
MIETPREISE
SONSTIGES
Objektbeschreibung
In den repräsentativen Bürogebäuden im Büropark EASTSITE finden Sie optimale Arbeitsbedingungen in modernem Ambiente. Prägendes Element der Bürogebäude in der EASTSITE sind die ausdrucksstarken Architekturbetonfassaden, die jedem Gebäude einen individuellen Charakter verleihen.
Alle Gebäude wurden flächenoptimiert geplant und verfügen über gut geschnittene, helle Räumlichkeiten sowie über moderne Ausstattung: Kühlung / Heizung via Bauteiltemperierung, Hohlraumboden mit Bodentanks, Stehleuchten, Außenjalousien elektrisch steuerbar, CAT 7-Verkabelung, hochwertige Sanitärbereiche, Teeküchenvorrichtungen. Das Gebäude „Eastsite VII“ verfügt zudem über eine Geothermieanlage und erfüllt nachhaltige und energieeffiziente Standards in der Gebäudetechnik.
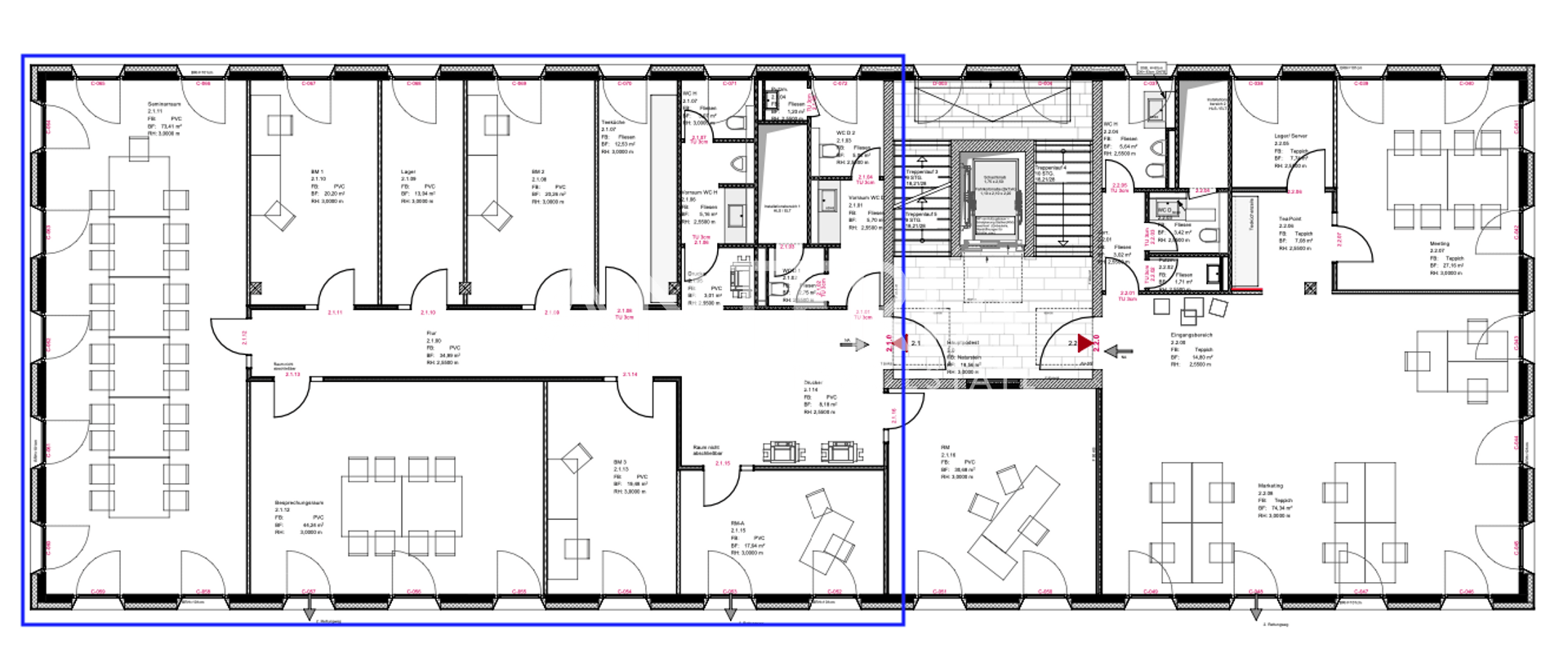
Ab Mai 2025 kann eine ca. 357 m² große Büroeinheit im 2.OG angemietet werden. Die Fläche ist modern gestaltet und bietet durch bodentiefe Fenster ein helles, großzügiges Raumgefühl. 3 Stellplätze stehen im Außenbereich zur Verfügung. Weitere Stellplätze können im Parkhaus des Eastsite-Areals angemietet werden.
Lagebeschreibung
Vom Büropark EASTSITE bestehen optimale Anbindungen an den öffentlichen Nah- und Individualverkehr. Die Straßenbahnhaltestelle „Carl-Benz- Stadion“ (Linien 6) befindet sich in fußläufiger Entfernung. Die Innenstadt wie auch die Autobahnanschlüsse BAB 5 und 6 sind in wenigen Fahrminuten erreicht. Von der A656 führt eine eigene Abfahrt ohne Umwege zur „Eastsite“.
Durch die Ansiedlung vieler renommierter Unternehmen in der Nachbarschaft (u.a. internationale Anwaltskanzleien der verschiedensten Fachrichtungen, Steuerberater und Wirtschaftsprüfer, Unternehmensberatungen, IT-Dienstleister, Forschungslabore) hat sich der Mikrostandort in den letzten Jahren zu einem gefragten Technologie- und Beratungsstandort entwickelt.
Verschiedene Einrichtungen des täglichen Bedarfs sowie ein gastronomisches Angebot befinden sich in der näheren Umgebung.
Die dargestellte Position der Immobilie ist nur eine ungefähre Angabe.
Ausstattung
Fernwärme
Kühlung via Bauteiltemperierung
Kontrollierte Lüftung mit Wärme-Rückgewinnung
Sonnenschutz: Außenjalousien elektrisch steuerbar
Hohlraumboden mit Bodentanks
Cat-Verkabelung
Teeküche
BAP-gerechte Beleuchtung (LED-Stehleuchten)
Leitsystem zur Besucherführung
Mietflächen & Verfügbarkeiten
Bürofläche (2.OG): ca. 357 m²
PKW-Stellplätze (Außenbereich): 3 Stück
Bezug: ab 01.05.2025 bzw. später nach Vereinbarung
Mietpreise
Kaltmiete Bürofläche 2.OG (€/m²): ab 16,90 €/m²
Nebenkostenvorauszahlung Bürofläche (€/m²): ca. 4,00 €/m²
PKW-Stellplatz (Außen) (€/Stk.): 85,00 €/Stk.
Die Konditionen gelten jeweils monatlich zzgl. der gesetzlich gültigen Umsatzsteuer von derzeit 19 %.
