Daten im Überblick
HIGHLIGHTS DER IMMOBILIE
Helle, geräumige Büroflächen
Zentrale Lage nahe dem Luisenpark mit gut erreichbarer Autobahnanbindung
Repräsentatives Foyer, barrierefrei
ALLGEMEINES
FLÄCHEN
ENERGIE
MIETPREISE
SONSTIGES
Objektbeschreibung
Das "Theo & Luise" bietet ein repräsentatives Foyer, modern und geräumige ausgestattete Büroflächen sowie eine sehr gute Stellplatzsituation.
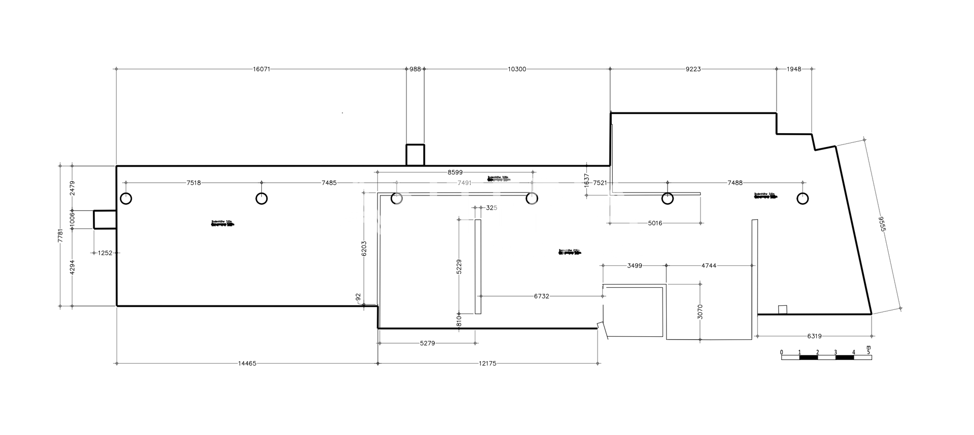
Im Erdgeschoss können zwei helle, offen gestaltete Büroeinheiten (Einheit 1, ca. 1.093,95 m², Einheit 2 ca. 694 m²) angemietet werden, welche sich über ein Erd- und ein Galeriegeschoss erstrecken. Die Flächen eignen sich neben klassischer, reiner Büronutzung auch für Mischzwecke mit gewerblichem Charakter oder kleinerer Produktion.
Weiterhin steht im 1.OG eine ca. 935 m² große Bürofläche zur Anmietung zur Verfügung. Die Fläche bietet neben kleineren Büroräumen für 2-4 Arbeitsplätze zwei große, lichtdurchflutete Open-Space-Bereiche. Die Einheit wurde kürzlich renoviert und in diesem Zuge mit einem neuen Boden sowie Kühlgeräten ausgestattet.
Das "Theo & Luise" liegt inmitten einer begrünten Umgebung. Die Mietflächen werden barrierefrei erreicht. In der hauseigenen Tiefgarage können für Mitarbeiter und Kunden Stellplätze angemietet werden.
Lagebeschreibung
Das "Theo & Luise" liegt in äußerst verkehrsgünstiger Lage. Die Straßenbahnhaltestelle „Carl-Benz-Stadion“ (Linien 6 und 9) befindet sich unmittelbar vor dem Gebäude. Die Innenstadt sowie die Autobahnanschlüsse BAB 5 und 6 sind in wenigen Fahrminuten erreicht. Der renommierte Bürostandort EASTSITE liegt in der direkten Nachbarschaft. Hier bieten sich beste Chancen für Synergien mit den angesiedelten Unternehmen aus den unterschiedlichen Branchen, u.a. verschiedene Fach Anwaltskanzleien, Steuerberater, Wirtschaftsprüfer, Unternehmensberatungen IT, Forschung und Entwicklung. Einrichtungen des täglichen Bedarfs liegen im fußläufigen Umfeld. Das Theo & Luise wird täglich zur Mittagszeit von einem „Imbisswagen“ angefahren. Freizeit- und Sporteinrichtungen wie das Carl-Benz-Stadion und der Luisenpark liegen in direkter Umgebung.
Die dargestellte Position der Immobilie ist nur eine ungefähre Angabe.
Ausstattung
Allgemein:
Repräsentatives Foyer
Personenaufzüge, barrierefrei
Glasfaseranschluss vorhanden
Sehr gute Stellplatzmöglichkeiten
Mieteinheiten:
Sonnenschutz (teilw. außenliegend, elektrisch)
EDV-Verkabelung, Hohlraumboden
Großzügige, helle Räumlichkeiten
Klimatisierung (Einheiten 1 und 3)
Moderne Bodenbeläge
Moderne Sanitäreinrichtungen
Flexible Raumaufteilungsmöglichkeiten
Mietflächen & Verfügbarkeiten
Bürofläche
Einheit Etage Größe
Einheit 1 EG+GG ca. 1.093,95 m²
Einheit 2 EG+GG ca. 694 m²
Einheit 3 1.OG ca. 935 m²
Alle Flächenangaben inkl. Allgmeinflächenanteil.
Bezug: ab sofort bzw. nach Vereinbarung
Stellplätze: 5 Stück
Mietpreise
Kaltmiete Bürofläche Einheit 1 (€/m²): ca. 12,00 €/m²
Kaltmiete Bürofläche Einheit 2 (€/m²): ca. 9,60 €/m²
Kaltmiete Bürofläche Einheit 3 (€/m²): 15,00 €/m²
Nebenkostenvorauszahlung (€/m²): 4,00 €/m²
Verwaltungskosten: 4 % der Monatsnettokaltmiete als Pauschale
PKW-Stellplatz (€/Stk.): 65,00 €/Stk.
Die Konditionen gelten jeweils monatlich zzgl. der gesetzlich gültigen Umsatzsteuer von derzeit 19 %.



























